Pole Culturel Doumer
Marcq-En-Baroeul | 2017
Infos
- maîtrise d'ouvrage Ville de Marcq-en-Baroeul
- surface 2 730 M²
- coût des travaux 5 400 000 € HT
- livraison Concours
L’espace Doumer est l’aboutissement d’un projet de salle des fêtes lancé dans les années 1930. Pour autant, notre proposition entend incarner le renouveau du quartier, et faire de ce bâtiment un lieu de rencontre ouvert sur la ville.
UN LIEU QUI FAIT CORPS AVEC LA VILLE
Un parvis avance vers la place Paul Doumer réaménagée, dont il redessine la frange, à l’alignement avec le trottoir de l’îlot adjacent. Le revêtement, fait de dalles de pierre, établit une transition douce avec la place, et se prolonge autour de l’édifice et dans le hall. Une promenade paysagère se déploie à l’ouest, autour du bloc cinéma, reliant l’espace de réception à la terrasse du bar puis au parvis.
Ce micro paysage combine dans un dessin clair des ambiances très végétales et contemplatives avec des espaces minéraux actifs, l’ensemble formant un équilibre au service de l’insertion urbaine du complexe.
UNE IDENTITÉ ARCHITECTURALE FORTE
L’expression formelle est simple ; trois volumes correspondent aux trois éléments du programme : la salle festive, la salle de répétition, le cinéma. Le choix de la brique noire comme matériau unique fait ressortir cette pureté des volumes. Sa teinte se décline sur une large palette chromatique allant du gris moyen au gris anthracite, avec des marbrures blanches et des reflets cuivrés. Elle ancre le bâtiment
dans son contexte ; la couleur noire distingue l’équipement des habitations de brique rouge qui le bordent.
Le complexe est orienté nord sud, son hall est traversant et ses circulations sont largement éclairées naturellement. Il est posé en cœur de site. Ses volumes sont hauts, et visibles de loin. Leurs façades sont ajourées pour ouvrir des perspectives sur la ville. Les accès aux différents espaces du complexe bénéficient ainsi d’une vue filtrée sur l’extérieur. Le soir, depuis la place, le bâtiment s’allume et devient
signal : on aperçoit le flux des visiteurs en ombre chinoise à travers des moucharabiehs.
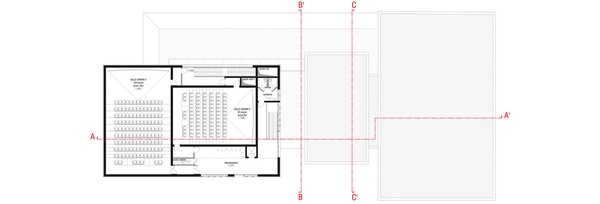
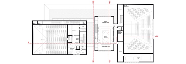
AU CŒUR DU COMPLEXE, UN HALL QUI RASSEMBLE
Le hall est l’élément central du projet, l’endroit où tous les publics se croisent, son Agora. Il se déploie en T au cœur du complexe, entre les trois programmes qu’il irrigue. Bien qu’étant le lieu unique de distribution, il permet la séparation des flux propres à chaque espace.
La salle festive est accessible directement depuis le hall, où un espace de billetterie/vestiaire/bar lui est dédié. La salle de répétition se situe au centre du complexe, et semble suspendue.
Les accès aux salles de cinéma sont mutualisés. La grande salle est accessible en rez-de-chaussée, des escaliers et un ascenseur menant aux deux autres à l’étage. Dans les trois salles, l’entrée se fait par le haut, accessible PMR, la sortie s’effectuant par le bas de salle. Les trois sorties se rejoignent à la droite du bar, en amont du point de contrôle.
UNE CONVIVIALITÉ DES ESPACES
Chaque lieu porte une attention particulière au confort des usagers. Ainsi, dans la salle festive, un grand moucharabieh ouvre sur la place Paul Doumer une vue filtrée.
Un tapis persan habille le sol de la salle de répétition, à la fois pour compléter le dispositif acoustique et pour rendre le lieu plus chaleureux. Dans les salles de cinéma, les écrans sont courbes, les salles bien gradinées pour permettre un très
bon dégagement de tête, les sièges clubs fixes coqués en bois.
Le nouvel espace Doumer est un bâtiment signal ouvert sur la ville. Son fonctionnement est fluide, ses lieux confortables. Il est une invitation à la rencontre, à la fête et au partage.
équipe
- LINÉAIRE A (Architecte mandataire)
- Mar Armengol Reyes (Paysagiste)
- SIBEO INGÉNIERIE (Bureau d'études TCE)
- IQTISSAD (Economiste)
- PEUTZ (acousticien)
- SCÈNEvolution (scénographe)