Siège de l'OEC
Paris | 2011
Infos
- maîtrise d'ouvrage OEC
- surface 560 M²
- coût des travaux 1 015 000 € HT
- livraison Consultation
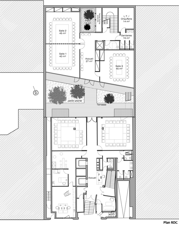
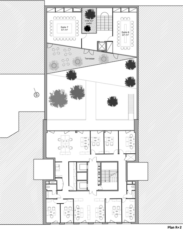
L'ordre des experts comptables étend ses locaux à usage de formation en créant 8 nouvelles salles dans le cour de son siège actuel, situé 50 rue de Londres à Paris. Cette extension de 560m² s'accompagne des locaux annexes nécessaires à son bon fonctionnement en manière autonome (sanitaires, cafétéria, locaux techniques, chaufferie)...
Le bâtiment existant est d'une architecture monolithique et d'un vocabulaire simple, le tout créant un ensemble statique. L'arrivée du nouveau programme nous a poussé à créer une dynamique nouvelle dans le site. Cette dynamique, induite par de simples mouvements de façades, nous a permis d'atteindre plusieurs buts : avoir un rapport moins frontal avec l'existant tout en créant des terrasses généreuses, préserver des largeurs importantes entre les deux bâtis et éviter les jours de souffrance des bâtiments mitoyens.Depuis l'accueil de l'immeuble existant, un axe transparent dessert à travers le jardin, à couvert, le bâtiment qui se développe sur trois niveaux autour d'une circulation verticale centrale et lumineuse.
Les salles de formation sont spacieuses, éclairées et ventilées naturellement. Dans chacune de ces salles, de nombreux rangements sont prévus pour une meilleure utilisation des espaces et une flexibilité d'usage.
La cafétéria, située au premier étage, s'ouvre sur une terrasse en liaison directe avec le premier étage du bâtiment existant
équipe
Architecte mandataire : LINEAIRE A
BET TCE : ID